|
|
名称:安徽华兴电器开关有限公司
地址:安徽省淮南市寿县蜀山现代 产业园蜀山大道42号
电话:0554-5869888-8009
传真:0554-5869888-8010
网址:www.hf-hx.cn
邮箱:hxdqkgc@163.com
|
 |
 |
|
| |
 |
 |
您的位置 > 首页 > 详细资料 |
 |
MHS(MNS)低压抽出式开关柜
|
|
| 产品说明: |
|
一、产品用途 MHs(MNs)型低压抽出式开关柜(以下简称为装置)与瑞士ABB公司制造的MNS低压开关柜属同类产品。本装置适用于交流50-60Hz,额定工作电压660v及以下的供电系统,用于发电,输电,配电,电能转换和电能消耗设备的控制。本装置除一般陆用外,经过特殊处理后还可用于海上石油钻采平台和核电站中。 本装置符合国际标准IEC439《低压成套开关设备和控制设备》、VDE660第5部分和国家相关标准GB7251.1-2005《低压成套开关设备》和JB/T9661-1999《低压抽出式成套开关设备》专业标准。 二、产品特点 设计紧凑:能以较小的空间容纳较多的功能单元。 结构通用性强:开关柜能满足各种结构型式、防护等级及使用环境的要求,组装灵活。 标准模块化设计:开关柜可组成保护、操作、转换、控制、调节、测量、指示等标准单元(模数单位E=25mm),以200余种组装件可以组成不同方案的柜架结构和抽屉单元。 安全性高:大量采用高强度阻燃型工程塑料组件,有效地加强了防护安全的性能。 三、使用环境 周围空气温度不高干+40℃,并且24小时内其平均温度不高于+35℃。 大气条件:空气清洁,相对湿度在最高温度为+40℃时不超过50%,在较低温度时允许有较高的相对湿度,例如+20℃时为90%,但应考虑到由于温度变化,有可能会偶然地产生凝露的影响。 海拔高度不超过2000米。 本装置适应于以下温度的运输和储存过程,-25℃至55℃的范围之间,在短时间内(不超过24小时)可达+70℃,在这些极限温度下装置不应遭到任何不可恢复的损伤,而且在正常的条件下应能正常工作。 四、技术参数
| 额定工作电压(V) |
380、660 技术交流参数 |
| 额定绝缘电压(V) |
660 |
| 额定工作电流(A) |
水平母线 |
630-6300 |
| 垂直母线 |
800-2000 |
| 额定适时(IS)耐受电流(KA)有效值/峰值 |
水平母线 |
80/176 |
| 垂直母线 |
90/105 |
| 外壳防护等级:IEC529标准 |
IP30、IP40、IP54 |
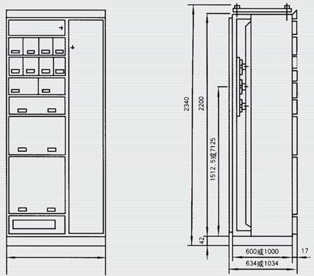
五、外形尺寸

| |
|
|
|
|
|
|
|