|
一、产品用途 HXG-12(XGN15)型户内SF6高压环网开关柜(以下简称环网柜)适用于三相交流50Hz,额定电压12KV的户内配电装置,广泛应用于工业及民用电缆环网及供电朱端.特别适用于小型二次配电站、开闭所、工矿企业、城市居民小区、机场、铁路、隧道、高层建筑等电力系统中作为接受和分配电能之用。 本装置符合国际标准IEC60298《交流金属封闭型配电装置和控制设备》及国家标准GB3906-91《3~35KV交流金属封闭开关设备》。 二、产品特点 环网柜是新一代以六氟化硫负荷开关作为主开关而整柜采用空气绝缘的、适用于配电自动化的、紧凑又可扩充的金属封闭式开关设备。环网柜具有结构简单、操作灵活、联锁可靠等特点,对各种不同的应用场合、不同的用户要求均能提供令人满意的技术方案。 三、使用环境 周围空气温度不高于+40℃,不低于-25℃。 大气条件:日平均值不大于95%,月平均值不大于90%。 海拔高度不超过1000米。 装置应安装在无火灾、爆炸危险、剧烈震动和冲击,以及不足以使电器元件受到不应有腐蚀的场所。 地震烈度不超过8级。 四、技术参术
| 额定工作电压(KV) |
10 |
| 1MIN额定工频耐受电压(V) |
24、32、42 |
| 主母线额定电流(A) |
630、1250 |
| 频定频率(HZ) |
50 |
| 额定断路耐受电流(KA) |
20 |
| SF6气体年泄露率 |
≤1% |
| 外壳防护等级(KV) |
IP3X |
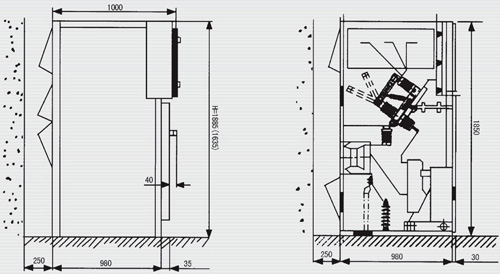
五、外形尺寸

|