|
|
名称:安徽华兴电器开关有限公司
地址:安徽省淮南市寿县蜀山现代 产业园蜀山大道42号
电话:0554-5869888-8009
传真:0554-5869888-8010
网址:www.hf-hx.cn
邮箱:hxdqkgc@163.com
|
 |
 |
|
| |
 |
 |
您的位置 > 首页 > 详细资料 |
 |
KYN28A-12金属铠装移开式高压开关柜
|
|
| 产品说明: |
|
KYN28A-12 金属铠装移开式高压开关柜 一、产品用途 KYN28A-12型金属铠装移开式高压开关柜(以下简称中置柜)系三相交流50Hz单母线系统的户内成套装置,作为接受和分配10kv及以下的网络电能之用。本型号开关柜具有防止误操作断路器、防止带负荷推拉隔离开关、防止带点挂接地线、防止带接地线送电和防止误入带电间隔的“五防”功能。 本装置符合标准GB390691《3~35kv交流金属封闭开关设备》。 二、产品特点 本系列中置柜是由柜体和可抽出部分(手车)两大部分组成.并附有检修小车,供断路器抽出时使用。中置柜为全组装式结构,手车具有体积小、移动轻便的特点,并且整机具有严格可靠的联锁机构,确保使用的安全可靠。 中置柜的外壳我公司讲采用优质敷铝锌钢板弯折之后进行螺栓组装,因此装配好的中置柜能保持尺寸的统一性。中置柜被金属隔板分隔成断路器室、母线室、电缆室、继电器仪表室.每个功能单位均独立;IP4X的外壳及隔室防护等级,在设计上充分考虑到开关柜内的鼓掌引起电弧事故,根椐GB3906和lEC298标准规定进行了严格试验,能有效的保证人身安全.最大限度的限制了内部故障电弧事故引起的火烧联营事故。 中置柜小车根据用途可分为断路器小车、电压互感器小车、计量小车、隔离小车等。各类小车高度和深度尺寸统一;相同的小车可互换,小车在中置柜内有断开、试验位置和工作位置。当小车需移开柜体进行检查、维护时,利用专用转运小车就可方便地取出。整个小车体积小,检查维护都很万便,小车上设有接地装置,与柜体可靠的接地连接,使小车移入移出变得轻松自如,开关柜上各种功能的控制操作均在门外操作。 三、使用环境 周围空气温度不高于+45℃,不低于25℃。 大气条件:日平均值不大于95%,月平均值不大于90%。 海拔高度不超过2000米。 装置安装在无火灾、爆炸危险、剧烈震动和冲击,以及不足以使电器元件受到不应有腐蚀的场所。 地震烈度不超过8级。 四、技术参术
| 额定工作电压(KV) |
3、6、7.2、12 |
| 1MIN额定工频耐受电压(V) |
24、32、42 |
| 额定工作电流(A) |
630-3150 |
| 频定频率(HZ) |
50、60 |
| 额定短路开断电流(KA) |
25、31、5、40、50 |
| 操动机构及操作电压(V) |
AC/DC110,220,DC48 |
| 外壳防护等级 |
IP3X、IP4X、IP5X |
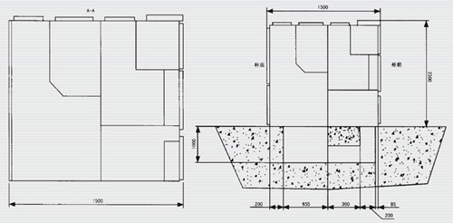
五、外形尺寸

| |
|
|
|
|
|
|
|